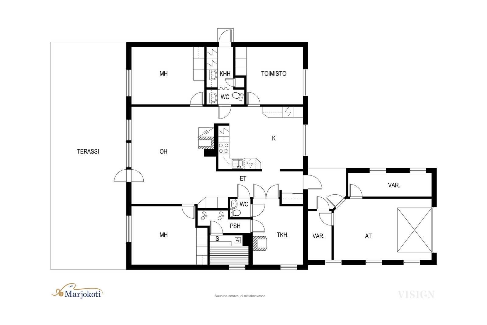
Omakotitalo, 113,0 m2
3 mh,oh,k,th, khh,kph,s, 2 wc + at, var
248 000,00 €
map Kokontie 7, 04600 Mäntsälä
my_location Katso sijainti kartalla
Sovi esittely, kohdetta välittää:
- Marjo Havurinne
- Yrittäjä, LKV, KiAT
- mail_outlineLähetä sähköpostia
- smartphoneSoita 0400374565
Sovi esittely, kohdetta välittää:
- Marjo Havurinne
- Yrittäjä, LKV, KiAT
- mail_outlineLähetä sähköpostia
- smartphoneSoita 0400374565
Kokontie 7, Mäntsälä, Leppäniemi
Tästä vuonna 2002 valmistuneesta kodista on pidetty hyvää huolta ja se edustaa kestävää laatua. Koti on tehty hyvistä materiaaleista, tarjoten ylellisen ja ajattoman asuinympäristön vaativaankin makuun.
Astu sisään ja tunne ylellinen tunnelma. Keittiön integroidut kodinkoneet ja kaunis kivilattia lattialämmityksellä luovat modernin, mutta lämpimän ilmeen. Olohuoneen takka ja leivinuuni tuovat lämpöä ja tunnelmaa. Tilaa riittää: kolme tilavaa makuuhuonetta sekä erillinen takkahuone takaavat, että jokainen perheenjäsen löytää oman rauhansa.
Olohuoneesta pääset suoraan koko talon levyiselle, katetulle terassille. Katettu tila on täydellinen rentoutumiseen ja oleskeluun pitkälle syksyyn. Tontti rajoittuu takapihaltaan puistoalueeseen, mikä takaa rauhallisuuden. Sijainti päättyvällä tiellä on ihanteellinen: rauhallinen mutta lähellä keskustan palveluita.
Asumisen helppoutta lisää erillinen autotalli, jonka yhteydessä on myös lämpimiä varastotiloja. Tämä on kokonaisuus, jossa on ajateltu kaikkea.
Astu sisään ja tunne ylellinen tunnelma. Keittiön integroidut kodinkoneet ja kaunis kivilattia lattialämmityksellä luovat modernin, mutta lämpimän ilmeen. Olohuoneen takka ja leivinuuni tuovat lämpöä ja tunnelmaa. Tilaa riittää: kolme tilavaa makuuhuonetta sekä erillinen takkahuone takaavat, että jokainen perheenjäsen löytää oman rauhansa.
Olohuoneesta pääset suoraan koko talon levyiselle, katetulle terassille. Katettu tila on täydellinen rentoutumiseen ja oleskeluun pitkälle syksyyn. Tontti rajoittuu takapihaltaan puistoalueeseen, mikä takaa rauhallisuuden. Sijainti päättyvällä tiellä on ihanteellinen: rauhallinen mutta lähellä keskustan palveluita.
Asumisen helppoutta lisää erillinen autotalli, jonka yhteydessä on myös lämpimiä varastotiloja. Tämä on kokonaisuus, jossa on ajateltu kaikkea.
Perustiedot
| Kohdenumero | 21288485 |
| Sijainti | Mäntsälä, Leppäniemi Kokontie 7 |
| Tyyppi | Omakotitalo |
| Huoneistoselitelmä | 3 mh,oh,k,th, khh,kph,s, 2 wc + at, var |
| Huoneiden lukumäärä | 4 |
| Makuuhuoneiden lukumäärä | 3 |
| Sauna | Oma sauna |
| Takka | Kaksi varaavaa takkaa ja leivinuuni |
| Parveke | Ei |
| Asuinpinta-ala | 113,0 m2 |
| Muut tilat | 16,0 m2 |
| Kokonaispinta-ala | 129,0 m2 |
| Lisätietoja pinta-alasta | Pinta-aloihin ei ole laskettu lämmintä autotallia |
| Muut rakennukset | Autotalli, talousrakennus, varasto |
| Yleiskunto | Hyvä |
| Kerros | 1 / 1 |
| Rakennusvuosi | 1988 |
| Käyttöönottovuosi | 2002 |
| Vapautuu | Sopimuksen mukaan |
Hinta ja kustannukset
| Velaton hinta | 248 000,00 € |
| Myyntihinta | 248 000,00 € |
| Kiinteistövero | 644,00 € / vuosi |
| Lisätietoja maksuista | Kaksi takkaa, leivinuuni ja ilmalämpöpumppu pienentävät sähkölaskua |
Tilat ja materiaalit
| Tilojen kuvaus | Kutsuitko suvun syömään, ei hätää yli 50 m2 katetulle terassille mahtuu isompikin ryhmä. Ruotsalaisen Jabo malliston aitaelementit yhdistettynä Siperian lehtikuusilattiaan, tuo ylellistä tunnelmaa, syksyn pimeinä iltoina syttyy terassille tunnelmavalot. |
| Keittiön varustus | Jääkaappi ja pakastin: jääkaappi/pakastin Tasot: laminaatti Seinät: puu Lattia: kivi Muut varusteet: astianpesukone, liesituuletin / hormi Liesi/uuni: keraaminen |
| Olohuone | Olohuoneessa varaava takka/leivinuuni, käynti upealle terassille Seinät: puu Lattia: parketti |
| Makuuhuone | Seinät: puu, tapetti Lattia: parketti |
| Kylpyhuone | Varusteet: lattialämmitys, suihku, kiinteät valaisimet Seinät: kaakeli Lattia: laatta |
| Kodinhoitohuone | Seinät: kaakeli Varusteet: pesukoneliitäntä, lattialämmitys, keskuspölynimuri Lattia: laatta |
| Erillinen WC | Lattia: laatta Varusteet: lattialämmitys Seinät: kaakeli Lukumäärä: 2 |
| Saunan kuvaus | Muotoillut lämpökäsitellyt haapalauteet |
| Saunan kiuas | Sähkökiuas |
| Saunan pinnat | Seinät: puu Lattia: laatta |
| Säilytystilat | Autotallin yhteydessä kaksi lämmintä varastotilaa. Erillinen varastorakennus |
| Muut huoneet | Takkahuone, Terassi |
Lisätiedot
| Lämmitysjärjestelmä | Lattialämmitys kivi/laattalattioissa, sähköpatterit muissa tiloissa |
| Kiinteistötunnus | 505-407-11-953 |
| Tontin omistus | Oma |
| Tontin pinta-ala | 922,0 m2 |
| Lisätietoja tontista | Hyvin hoidettu puutarhatontti, sisäpihalla iso terassi. Tontti rajoittuu puistoalueeseen |
| Rakennusmateriaali | Puu puurunko, tiiliverhous |
| Katto | Tyyppi: harjakatto Kate: peltikate Kunto: uusittu noin 2-3 vuotta sitten |
| Viemäri | Kunnan |
| Vesi | Kunnan |
| Energiatodistus | On |
| Energialuokka | Energiatodistus laadittu 27.11.2025 |
| Energialuokka | C2018 |
| Kaavoitus | Asemakaava |
| Muuta kauppaan kuuluvaa | Sälekaihtimet/rullaverhot, verhotangot, naulakko, keskuspölynimuri, kiinteät valaisimet, lämminvesivaraaja, ilmalämpöpumppu, matontamppausteline, jätesäiliö, istutukset |
| Viat ja vahingot | Vesivahinko: ei Kosteusvahinko: ei Home-/mikrobi- tai muita sisäilmaongelmia: ei Muita erityisiä ongelmia: ei |
| Lisätietoja | Tie perille, sähköliittymä siirtyy. Muita siirtyviä liittymiä: vesi- ja viemäriliittymä |
Palvelut ja liikenneyhteydet
| Palvelut | Keskustan palvelut noin 1,5 km |
| Koulut | Keskustan ala-aste kilometrin päässä, yläasteelle kaksi kilometriä |
Välitysliike
| Yhteystiedot |
Marjokoti LKV Keskuskatu 7, 04600 Mäntsälä marjo.havurinne@marjokoti.fi 0400374565 |
infoTäydelliset kohdetiedot saat tilaamalla myyntiesitteen, ota yhteyttä välittäjään.
Sovi esittely, kohdetta välittää:
- Marjo Havurinne
- Yrittäjä, LKV, KiAT
- mail_outlineLähetä sähköpostia
- smartphoneSoita 0400374565
- Omakotitalo, 113 m2
- 3 mh,oh,k,th, khh,kph,s, 2 wc + at, var
- map Kokontie 7, 04600 Mäntsälä
- my_location Katso sijainti kartalla